190 North Avenue, WestPORT
$1,625,000 • 4 Bedrooms • 3 | 1 Baths
2% to Buyers Agent
Private Exclusive - more photos coming soon
First time on the market in over 50 years, this meticulously maintained 1910 Colonial is a rare and timeless offering in one of Westport’s most cherished settings. Set on 2.66 private acres and abutting an additional 7 acres of protected Land Trust, the property offers exceptional privacy, pastoral views, and enduring tranquility.
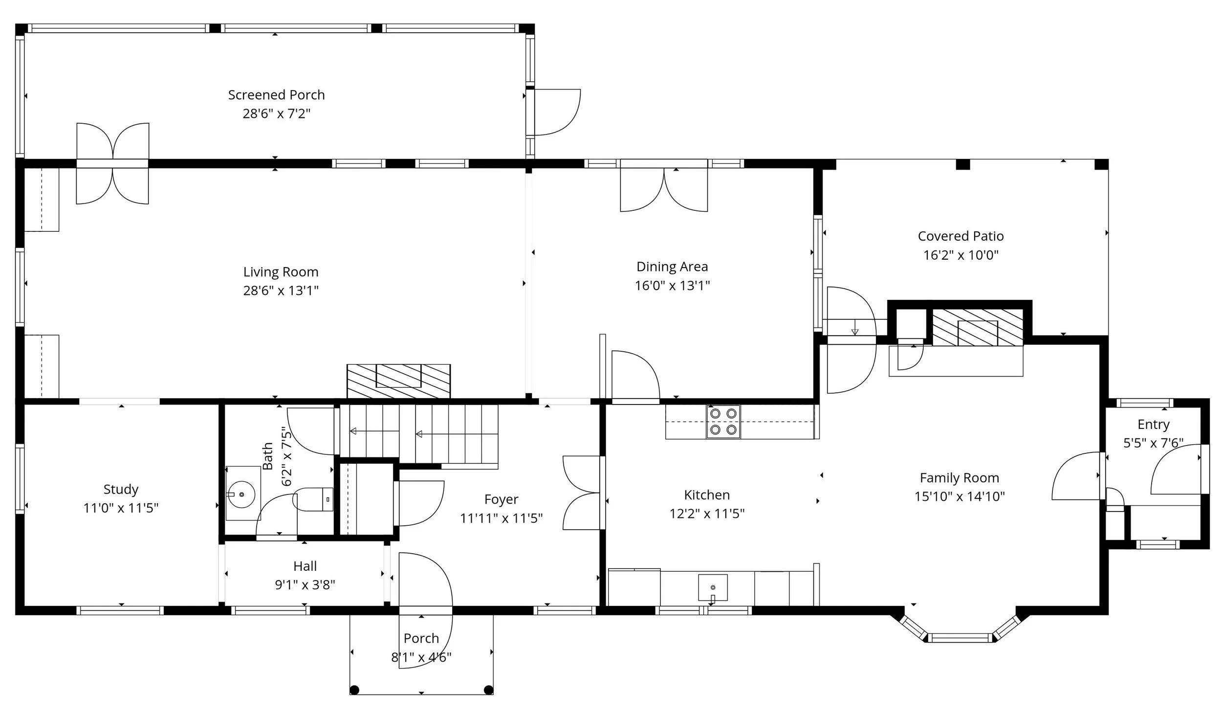
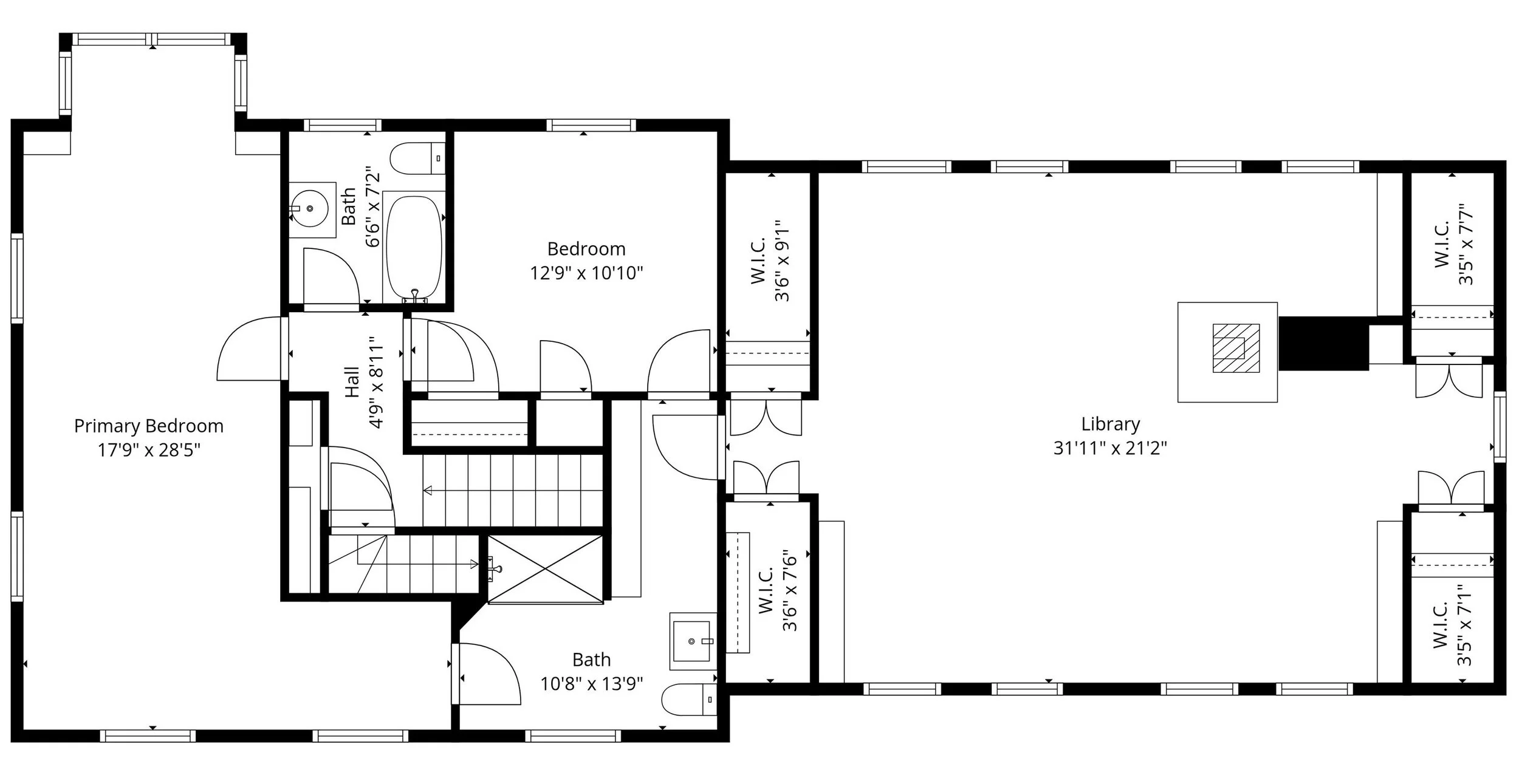
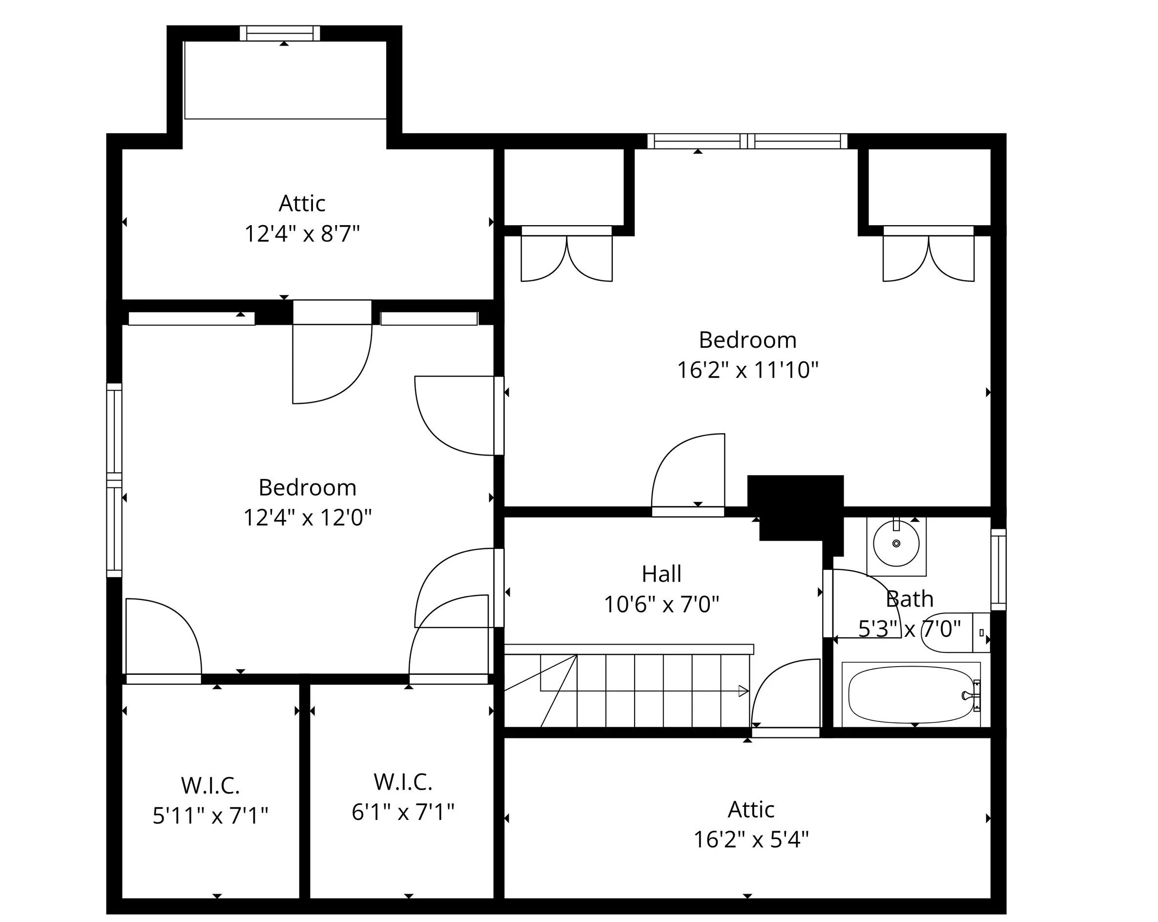
Rich in character and architectural detail, the home features four bedrooms, three full and one half baths, and graciously proportioned living spaces that balance historic charm with everyday comfort. A screened porch invites quiet mornings and long summer evenings overlooking the expansive grounds, while two classic barns offer endless possibilities for hobbyists, artists, or those seeking flexible auxiliary space.
Lovingly cared for over generations, this estate presents a rare opportunity to enjoy as-is or thoughtfully reimagine, all while preserving its authentic New England soul. A truly special property—where history, land, and lifestyle come together just minutes from Westport’s town center, beaches, and schools.
Floor Plans
